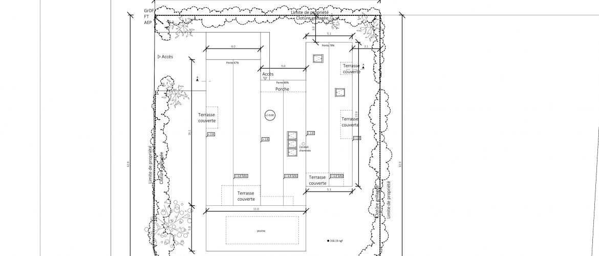
Maison individuelle de plain pied dans un secteur résidentiel
Travaux terminés

Maison individuelle de plain pied dans un secteur résidentiel
Travaux terminés

Necessary cookies are absolutely essential for the website to function properly. This category only includes cookies that ensures basic functionalities and security features of the website. These cookies do not store any personal information.
Any cookies that may not be particularly necessary for the website to function and is used specifically to collect user personal data via analytics, ads, other embedded contents are termed as non-necessary cookies. It is mandatory to procure user consent prior to running these cookies on your website.
Bienvenue sur notre site web Atelier-Brun-Architectes.com, cabinet d'architectes à Chambéry, en Savoie (73).
En relation directe avec les promoteurs (privés et publics) ou avec nos clients privés, nous sommes à votre service : logements collectifs (appartement, logement social, logement locatif, accession à la propriété), maisons individuelles (maison à ossature bois, maison contemporaine), secteur tertiaire (bâtiments commerciaux, bâtiments industriels), chalets de montagne (en station de ski, ou ailleurs).
Depuis 1985, l’architecte DPLG Raymond Brun et son équipe, vous apportent leurs compétences en architecture, en maîtrise d’oeuvre, et en économie. Nos certifications HQE et QBE sont le gage de notre professionnalisme pour vos objectifs en matière d'écologie et de développement durable.
Nous intervenons sur les communes du bassin chambérien (Chambéry, Barberaz, La Ravoire, Challes-les-eaux, Barby, Bassens, Saint-Alban Leysse, Saint-Jeoire Prieuré, Cognin, Vimines, Verel-Pragondran), mais aussi sur le bassin d'Aix-les-bains, ou encore les stations de ski comme Courchevel, Val d’Isère, Méribel, Crest-Voland, et La Clusaz.
